09/12/2024
Công bố điều chỉnh quy hoạch chi tiết khu Nghĩa trang Cải Đan, phường Cải Đan.
Lượt xem: 71
Thuyết minh điều chỉnh quy hoạch chi tiết khu nghĩa trang Cải Đan. Chi tiết xem tại đây.
Quy định quản lý theo đồ án điều chỉnh QH chi tiết khu nghĩa trang Cải Đan. Chi tiết tại đây.
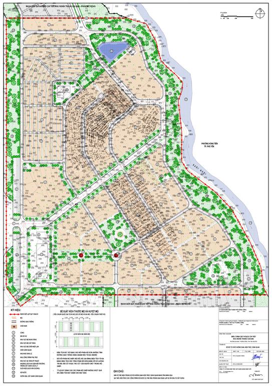
Bản đồ quy hoạch sử dụng đất trước và sau điều chỉnh. Chi tiết xem tại đây.
.jpg)
Bản đồ QH tổng mặt bằng sử dụng đất. Chi tiết xem tại đây.
.jpg)
Bản đồ Qh kiến trúc cảnh quan. Chi tiết xem tại đây.
jpg_Page1+(Copy).jpg)
Bản đồ QH giao thông. Chi tiết xem tại đây.
jpg_Page1+(Copy).jpg)
Bản đồ QH đường ống hạ tầng kỹ thuật. Chi tiết xem tại đây.
.jpg)
Quy hoạch thiết kế đô thị. Chi tiết xem tại đây.
-injpg_Page1+(Copy).jpg)